MENU
  • Úvod
  • Výběr bytu
  • O projektu
  • Galerie
  • Ceník
  • Kontakt
  • Rezervace
  • Výběr bytu
  • O projektu
  • Galerie
  • Ceník
  • Kontakt
  • Rezervace
Zpět na výběr bytu
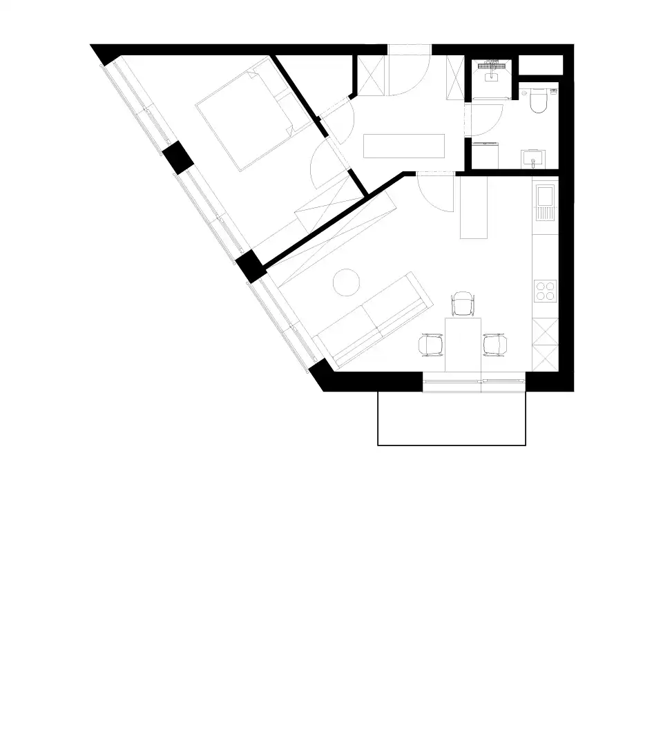
B-BJ-5-8
Zpět na výběr bytu

B-BJ-5-8

Dispozice
2+kk
Patro
5 NP
Balkon
3,96 m²
Podlahová plocha
52,99 m²

*Podlahová plocha je vypočtená v souladu s nařízením vlády č. 366/2013 Sb.

Video prohlídka bytové jednotky

Video nelze přehrát.

  • Výběr bytu
  • O projektu
  • Galerie
  • Ceník
  • Kontakt
  • Rezervace

Rezidence Lesík

Rezidence lesík s.r.o.
Libušina 248, 272 03 Kladno

Jiří Tatýrek
+420 721 461 411
j.tatyrek@bcas.cz
Broker Consulting a.s.
Napsat zprávu

Krásná, klidná lokalita v srdci Kladna, s výhledem na klidné údolí kladenského Podprůhonu.

Grafický návrh a programování developerského webu